Brighton Extension and Loft Conversion
Our project in Ship Street in Brighton has been granted planning permission. An interesting property next to the Hippodrome and set within a Conservation area, the project is now moving into the detailed technical phase.
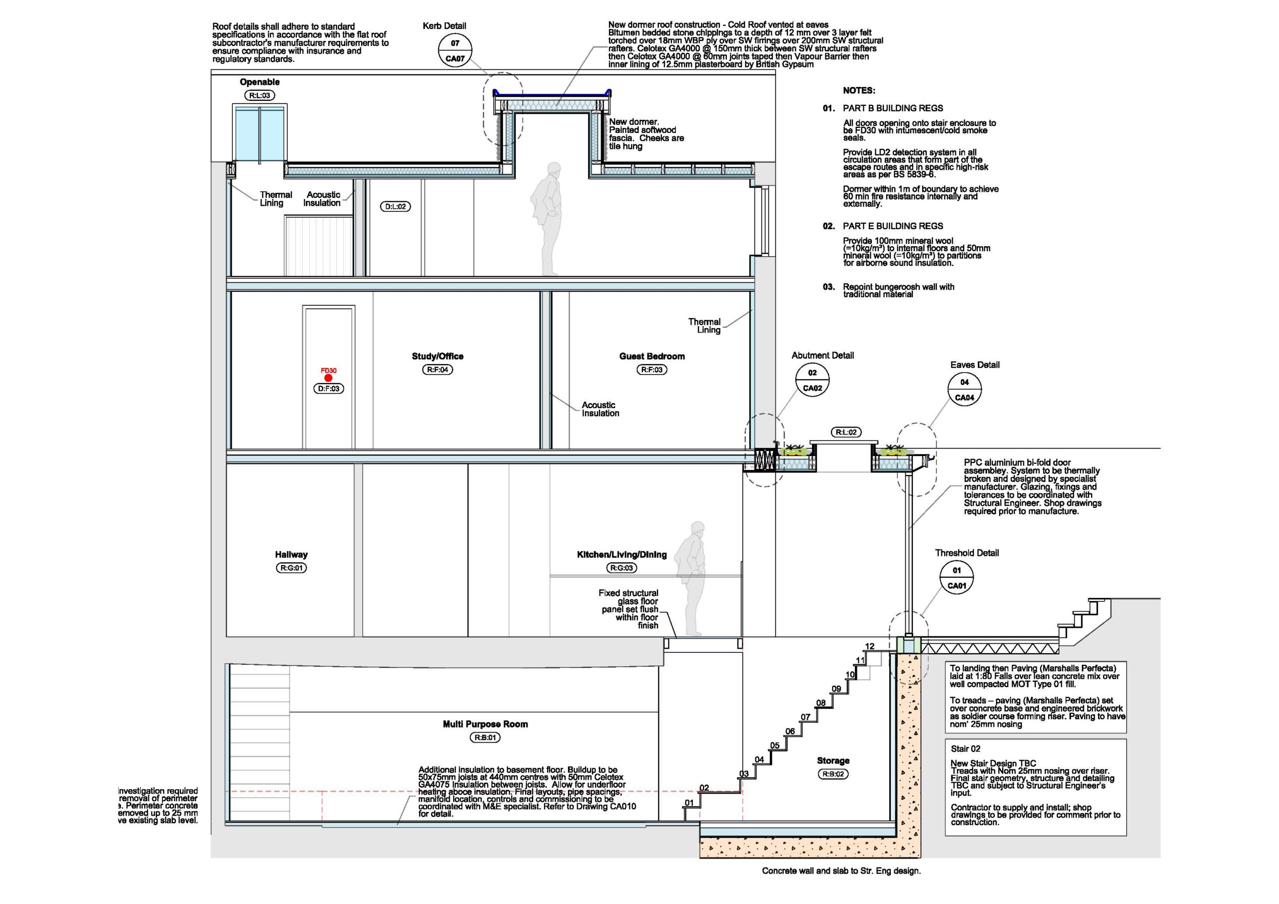
This activity sees the planning drawings developed into a set that will enable the project to be priced, built and compliance with Building Regulations demonstrated.
The design is always improved the more it is drawn and firmed up. This is also helped as at the earliest concept design stages we are considering the technical aspect of what we are designing.
We will produce large scale drawings of each space including interior wall elevations to bathrooms and utility rooms. We also design the lighting layout and similarly the electrical and heating layouts. In Parallel we will prepare the schedule of works and specification which will itemise and describe every element of the project. As a part of this process we will also be working with a structural engineer and most probably a party wall surveyor. All the while acting as our client’s agent at every stage of the project.
A planning condition for this project requires the involvement of an archaeologist and we have organised this.
We will soon go out to tender to arrange of local contractors that we work with as we seek best value for our clients.
Brighton Architects
If you have an extension project in mind please feel free to contact us. We would be happy to discuss the feasibility and explain the process.



